Three Shades of Green: Part 1 – Reimagining a Family’s Favourite Room

Some rooms carry decades of family memories within their walls. When clients approach me about updating such spaces, I’m always conscious that we’re not just refreshing the décor; we’re honouring a room’s history whilst bringing it into a new chapter. This was the case with a recent project involving the informal sitting room of a Georgian house that has been a family home for over 25 years. Here we’ll look at the background to this project and the ideas that came into play, but keep an eye out for the fabulous result in Part 2 coming soon.

About the family ‘Green Room’

The room in question was the final room to be updated in this complete home renovation. Sitting at the front of the house, it’s blessed with large windows overlooking beautiful south-facing gardens. Being the informal sitting room, it’s where the family gather to watch television, where grandchildren play table football (currently refusing all suggestions to relocate this to the pool house!) and where a cherished rug from a family trip to Luxor anchors the space. After more than two decades of devoted use, the room was now ready for a thoughtful update.

Informal sitting room, large green walls, high ceilings

Keeping what works, refreshing what doesn’t

My clients wanted to keep the green palette, but longed for the room to feel lighter and brighter. The ornate window dressings felt dated and the upholstered furniture had also earned its retirement, except for one enormous sofa which had been there when they first moved in. This was simply too good a piece to replace, so I suggested having it re-upholstered to give it new life.

Practical improvements included updating the open fireplace with a wood burner and moving the position of the television to allow for a bigger screen. Perhaps most pressing was the lighting – the room relied entirely on several picture lights and two small brass chandeliers that provided inadequate illumination for the space.

Three different green visions

Knowing my clients wanted to keep the room green, I suggested three schemes each based around a different green hue. 

The first option featured soft sage tones paired with a James Hare embroidered curtain fabric in green and pink, complemented by darker wood furniture for contrast.

Soft sage mood board,  embroidered curtain fabric in green and pink, darker wood furniture.

The second embraced a richer emerald green palette, built around a Colefax and Fowler floral fabric and balanced with natural wood and linen textures.

Mood board of natural wood and linen textures, hues of green.

The third took a fresh olive green direction with yellow accents, featuring a traditional Lewis and Wood floral for the windows.

Mood board witg fresh olive green and yellow accents across sofas, wallpaper, curtains and fabrics

Each scheme was presented with mood boards, rendered illustrations, floor plans and material samples to give my clients a comprehensive view of how each option would transform the room.

The chosen direction

After careful consideration, my clients selected the sage green scheme with pink and green embroidery. Interestingly, this was the option closest to their existing palette, which speaks to how well the original green had served them. The scheme would work beautifully with the Luxor rug whilst feeling noticeably lighter and more refined.

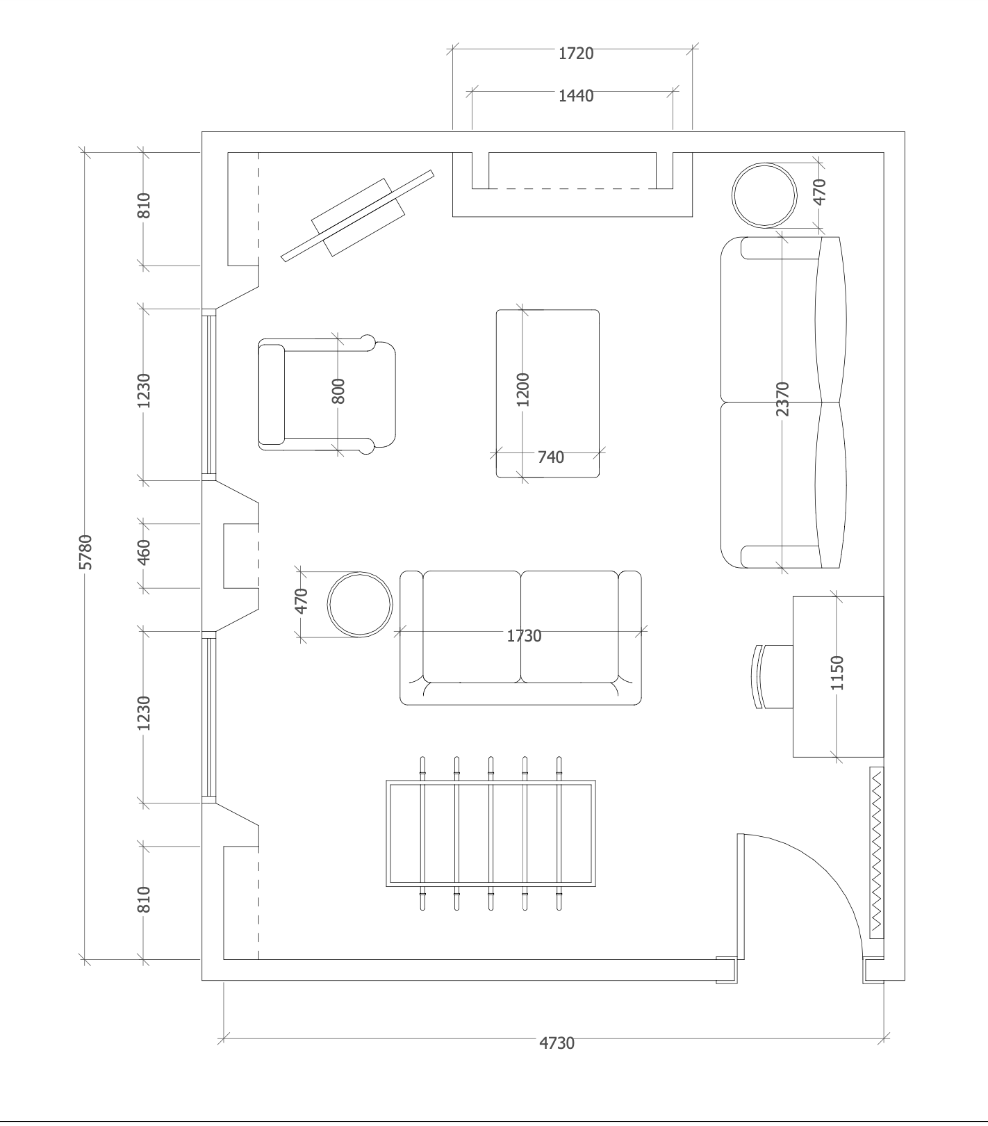
The new layout would bring the sofas into the centre of the room, creating space for a new ottoman and side tables at either end to accommodate table lamps. We’d replace the small chandeliers with much larger statement pieces and add matching wall lights for layered illumination throughout.

Design plans for living room

A summer transformation

All the work needed to happen whilst my clients were abroad for the summer. This meant coordinating every element with precision, including stripping out the room, bringing in electricians to relocate wiring and decorators to spray paint the delicate ceiling, removing curtains and pelmet boards to use as templates for new, simpler window dressings and ordering all the furniture and soft furnishings. 

The re-upholstery of that enormous sofa proved particularly tricky as it was hard to get it out of the room, but we managed in the end! I also designed made-to-measure cushions with coordinating braids, new throws, carefully curated artwork and all those finishing touches that transform a room from merely decorated to genuinely dressed. In terms of the timeline, everything had to be delivered and installed before my clients’ return, ready to welcome them home to their refreshed favourite room.

Coming soon: The reveal

The transformation is now underway and I’m delighted with how the sage and pink scheme is breathing new life into the space whilst still respecting its character and history. In Part 2, I’ll be sharing the full reveal, showing how we created a room that feels both fresh and familiar. The grandchildren still refuse to move the table football to the pool house, which somehow tells me we’ve succeeded in keeping this room exactly what it should be: the heart of a family home. 

Are you looking to refresh a room in this way? Get in touch with me today to discuss the vision you have for your home.

Nicky

Previous
Previous

From Garage to Guest Studio (Part 1): Transforming an Edwardian Coach House

Next
Next

The Art of Wardrobe Design: Making Every Centimetre Count