How Architects and Interior Designers Can Collaborate to Make the Dream Team

As we step into a new year, many homeowners are thinking about renovations and home improvements. One question I’m often asked is ‘Do I need an architect, an interior designer or both?’ It’s a fair question, but the answer isn’t always straightforward. While architects and interior designers have distinct roles and expertise, there’s also a great deal of overlap where collaboration can transform a good project into something truly magical.

Having worked alongside architects on numerous home renovations across Kent and Sussex, I’ve learned that the key to success lies in understanding where each professional’s responsibilities begin and end and, most crucially, where working together creates the best possible outcome for clients. Let me share insights from a recent extensive refurbishment project that perfectly illustrates this collaborative process.

Understanding the architect’s role

Architects focus on the building itself. They are responsible for the overall structure – the form, flow and function of the building. They’ll usually begin by surveying the existing property, producing measured drawings and elevations and preparing a package for planning approval. They look at the big picture: the exterior form, the way the building sits in its setting and the technical details that ensure it stands safely and efficiently. They’re the ones who liaise with planning departments, oversee structural changes and produce the detailed plans builders rely on to get the fundamentals right. But once the structure is defined, that’s where my role as an interior designer starts to take shape.

Where the interior designer comes in

Interior designers work from the inside out, thinking about how a home feels, functions and flows for the people who live in it. Once the architect has created the shell, the designer can begin to refine the spaces within: the layout of rooms, the placement of lighting, the materials, textures and details that bring personality and comfort to every corner. I often describe my role as ‘putting the meat on the bones’. That means planning everything from kitchen and bathroom layouts to bespoke joinery, finishes and soft furnishings – the elements that transform a house into a home. 

The grey areas: Collaboration creates magic

However, there’s a wonderful middle ground where the two roles naturally overlap, and that’s where the magic really happens.

Space planning

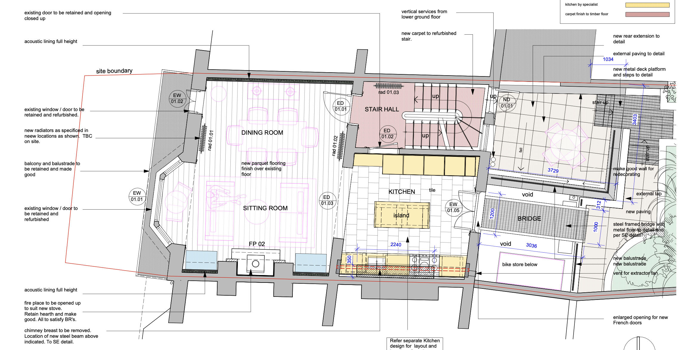
The architect typically leads on space planning, but involving an interior designer early in this process proves invaluable. On the refurbishment project I’m using as an example, the building was decidedly ‘on the wonk’ – a rhomboid rather than a rectangle, with multiple levels and complex relationships between the road and garden. 

Architects drawings of a townhouse

By working together from the start, we were able to develop interior furniture layouts that influenced the optimal positioning of walls, partitions, door openings, radiators and switches. This ‘inside out’ approach meant that furniture placement, electrical points and special features were all accommodated sympathetically within the initial architectural design, avoiding costly additions later. 

One of the most interesting elements at this stage was the client’s request for a bridge to be constructed, connecting the first-floor kitchen to the garden – a striking architectural solution that required detailed coordination between both our disciplines.

Kitchen and bathroom design

Kitchens and bathrooms always require particularly close collaboration. In this example, the kitchen itself needed meticulous planning because the building wasn’t square, so every millimetre had to be measured multiple times.

We ended up making the kitchen completely bespoke, so I worked closely with the client to agree on the layout. I also collaborated with the cabinet maker by creating detailed elevations specifying exact sizes, materials and finishes.

Mood board for kitchen

Here’s a snapshot of the finished room, complete with bespoke kitchen cabinets, flooring, lighting and the bridge connecting the kitchen to the garden beyond.

The attic bathroom presented similar challenges in terms of layout due to height restrictions. Here is the initial plan presented by the architect.

This eventually needed reworking to accommodate limited head heights and the client’s specific requirements – a great example of how interior designers refine architectural concepts to meet practical needs and client preferences.

Revised plan and snapshot of finished room

Defining roles and responsibilities

The key to avoiding unnecessary duplication is dividing roles and responsibilities clearly from the outset. A good architect and interior designer will help their clients navigate these differences and ensure the right person is handling the right aspect of the project. In practice, architects typically provide room schedules for builders to cost up, whilst interior designers like myself create the detailed specifications and drawings that show exact dimensions, materials and finishes. I then move into the realm of FF&E (furniture, fixtures and equipment) – areas where most architects prefer not to tread.

The value of collaboration

When architects and interior designers communicate well and respect each other’s expertise, the renovation process becomes much more seamless. It makes a big difference when both parties are involved from the start. When I’m brought into a project early, I can help ensure the interior layouts, furniture placement and lighting are considered in tandem with the architectural design. This avoids costly add-ons later and creates a more cohesive, thought-through result. 

So if you’re planning a renovation or extension this year, why not consider getting an architect and an interior designer on board from the very beginning? This collaborative approach creates homes that are not only structurally sound and beautifully designed, but perfectly tailored to how you actually live. Get in touch with me today to explore the possibilities for your own home transformation.

Nicky

Previous
Previous

10 Design Secrets That Help Shape My Work

Next
Next

Breathing New Life into a Well-Loved Sitting Room