5 Tried-and-Tested Steps to a Stress-Free Kitchen Extension

It’s that time of year when many will be considering a kitchen extension—a task that’s certainly not for the faint-hearted! As someone who has guided countless clients in Kent and Sussex through this journey, I’ve seen the good, the bad, and occasionally the ugly side of creating that dream kitchen space. But I’ve also witnessed the pure joy when homeowners first step into their stunning new heart-of-the-home. Over the years, I’ve developed tried-and-tested approaches that can make the difference between a stressful renovation and a smooth transformation. Here are my top tips for not just surviving but actually having fun with your kitchen extension project.

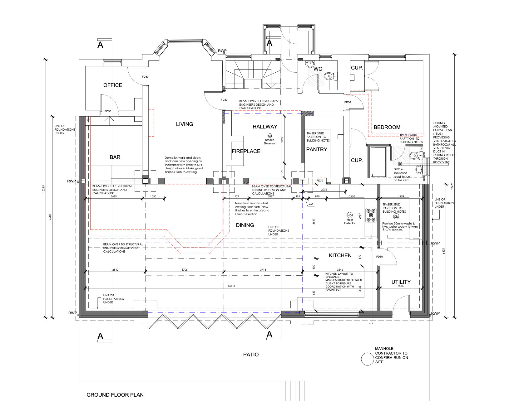
1. Plan like your sanity depends on it 

If there’s one piece of advice I give to every client, it’s this: design your kitchen in full before lifting a single hammer. While it might be tempting to start knocking down walls as soon as possible, I’ve seen too many projects derailed by hasty decisions. Take time to envision the complete space—from cabinetry layout to lighting placement, from appliance positions to the perfect flooring. When clients bring their architect’s plans and existing photos to a kitchen company with clear ideas about their needs, the process flows so much more smoothly. Remember, changing your mind about a wall socket position is simple on paper, but can be costly and frustrating once walls are built!

KItchen extension plan

2. Double (or triple) your timeline 

Kitchen extensions nearly always take longer than expected. Between potential drainage issues, delayed material deliveries, and the careful choreography of tradespeople, patience becomes your best friend. For a well-executed project, allow at least six months—1-2 months for design, 8-12 weeks for product lead times, and several weeks for installation. And that’s assuming everything goes according to plan. Having that realistic timeline from the beginning will help you maintain your sanity if and when delays arise. 

Rear view of house, extension under construction

3. Be honest about your kitchen habits

I always give my clients a detailed kitchen questionnaire that often makes them think about how they actually use their kitchen. Who cooks in the family? Do you bake bread regularly? Are you passionate about pasta-making? Kitchen companies excel at designing beautiful cabinetry and recommending appliances, but they rarely consider lifestyle elements like comfortable seating areas, the relationship with your garden, or those personal touches that make a kitchen truly yours. The most successful extensions I’ve designed have come from clients who embraced honest self-reflection about their daily habits and future aspirations.

Open plan kitchen opening onto the garden

4. Create a schedule of works 

A detailed schedule of works is your roadmap to success. This comprehensive list outlines every single action needed to complete your project in the exact order they must happen. When everyone—from plumbers to electricians to tilers—knows precisely when they’re needed and what should be completed before their arrival, you avoid the frustration of tradespeople tripping over each other or waiting for prerequisite jobs to be finished. You don’t want the flooring company waiting around because the plumbers or electricians haven’t  finished yet! It’s also best to order materials in advance. This can be tricky if there’s not much space to store them in the meantime, but it’s better to avoid delays and additional cost. 


5. Bring in professional support 

Kitchen extensions involve countless decisions—from the big-picture layout to the smallest details like socket placement and lighting circuits. Making all these choices while living through a major renovation can be overwhelming. Consider bringing in a design professional who understands both the creative and practical elements of kitchen extensions. A good designer will hold your hand through the process, translate your ideas into workable plans, and help navigate the inevitable challenges that arise. Many of my clients tell me that having someone to guide them through material selections, coordinate tradespeople, and provide objective advice when they felt decision fatigue setting in was the best investment they made in their project.

Kitchen white units, suspended lights, breakfast  bar, island sink

Ready to create your dream kitchen?

Kitchen extensions are significant undertakings, but with proper planning, realistic expectations, and the right support, they can transform not just your home but your everyday living experience. The joy of seeing a beautifully-designed space come together exactly as you imagined is truly worth the journey. 

If you’re considering a kitchen extension in Kent or Sussex and would like some guidance on where to begin, do get in touch. I’ve helped countless homeowners create stunning, functional kitchen spaces that perfectly match their lifestyle needs—and I’d love to help you too.

Nicky






Previous
Previous

The Coach House Transformation: Part 1 – Crafting the Vision

Next
Next

Spring Interiors: Embracing Lavender and Light